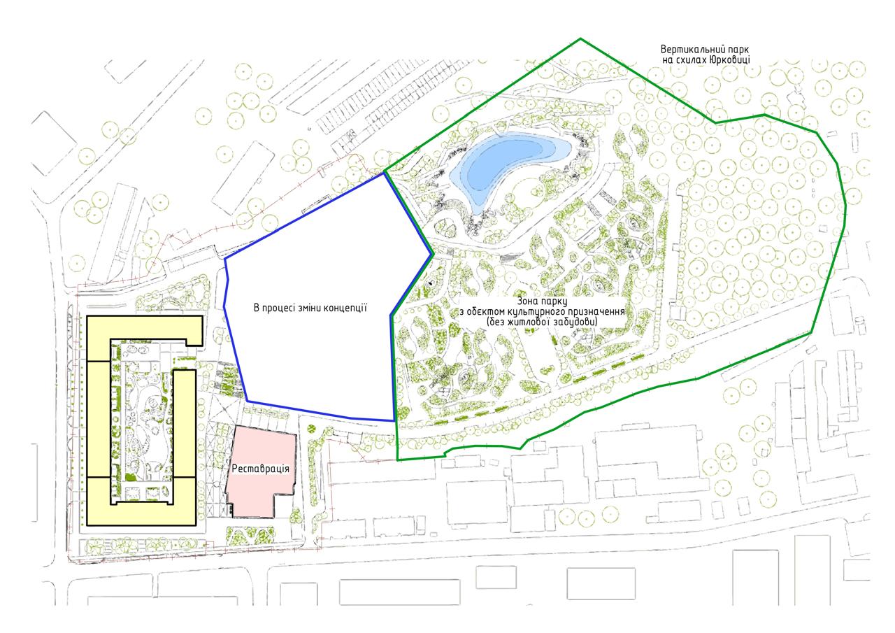
Девелоперська компанія А Девелопмент створить одразу два нових парки у Подільському районі столиці. Перший парк площею 5,85 га розташується у межах вулиць Нижньоюрківська, Кирилівська та Мильного провулку, а другий "Вертикальний парк" площею 6,5 га облаштують на схилах гори Юрковиця.
Трамвай дізнався усі подробиці.
Допоможіть журналістам Vgorode.ua виконувати свою роботу. Підтримайте фінансово >>> ❤
Подільський район отримає одразу два нових парки - парк площею 5,85 га в межах оновленого проєкту "Ріхерт&Парк" та "Вертикальний парк" площею 6,5 га на схилах гори Юрковиця. Загальна інвестиція у зелені зони становитиме 40 млн грн. Додатково компанія проведе реновацію місцевої школи та реставрацію історичних пам'яток.
Наразі компанія завершує підписання меморандуму з Подільською РДА. За умовами документу, девелопер зменшить площу забудови на 40 000 м² на користь паркової зони. У новому парку облаштують культурно-спортивний центр, а "Вертикальний парк" матиме прогулянкові зони та оглядові тераси з видом на місто.
Обслуговування обох парків здійснюватиме КО "КиївЗеленБуд". Це гарантує належний догляд за зеленими зонами та їх збереження для громади. Будівельні роботи в межах проєкту проводитимуться лише там, де висота будинків не перевищує 27 метрів, що було погоджено з місцевими мешканцями.
"Реалізація проєкту в його переосмисленій концепції забезпечить місцеву громаду актуальними інфраструктурними функціями, відкриє нову сторінку в історії комплексу пам'яток після завершення робіт з їх реставрації, а дві нові паркові зони загальною площею понад 12 гектарів стануть справжнім зеленим надбанням для всього міста", — зазначив Олексій Баранов, власник та СЕО А Девелопмент.
